25 / 100 SEO Score

Understanding Symbility Sketch XML: A Comprehensive Guide

Mastering Symbility Sketch XML for Streamlined Property Claim Workflows

In the ever-evolving landscape of property insurance estimator and restoration, technology plays a pivotal role in enhancing efficiency and accuracy. One of the most significant tools in this domain is Symbility Sketch, a software solution that streamlines the process of creating detailed building sketches for claims processing and assessments. This guide aims to delve into the intricacies of Symbility Sketch XML and provide valuable insights and tips for maximizing its potential in your workflows.

What is Symbility Sketch XML?

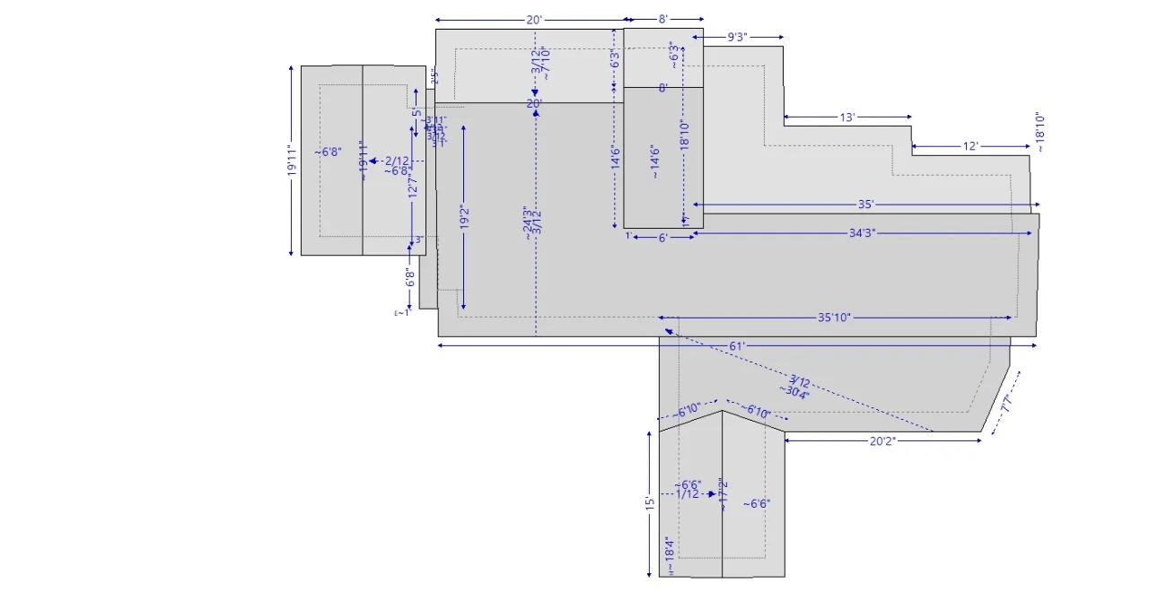
Symbility Sketch XML is a file format used to store and exchange sketches created within the Symbility platform. We are also providing Arial roof measurements PDF Document and this powerful tool allows users to create accurate and detailed floor plans, structural sketches, and other critical visual documentation required in the insurance claims process. The XML format ensures that all the data related to the sketches can be easily shared and integrated with various systems, contributing to a more seamless workflow. The benefits of using Symbility Sketch include high-resolution output, compatibility with various platforms, and the ability to easily update and modify sketches. One of the common requirements among users is converting Xactimate sketches to Symbility formats. This is often needed when companies transition from Xactimate to Symbility for a more robust sketching experience.

Converting Xactimate Sketch to Symbility

The transition from Xactimate to Symbility might seem daunting, particularly when it comes to importing existing sketches. However, this process can be simplified with effective strategies. There are various methods available for converting Xactimate sketches into Symbility format, and utilizing the XML format is one way to facilitate this transition. By following a few straightforward steps, you can successfully import your sketches into Symbility and continue your workflows without interruptions.

  • Export the sketch from Xactimate: Start by exporting your sketch from Xactimate. Make sure to save it in a compatible file format, like an XML file, which can store all necessary data regarding your sketch.
  • Import into Symbility: Open the Symbility platform and navigate to the import feature. Choose the option to import from Xactimate XML files, and then upload your exported sketch. Symbility will process the file and convert it, maintaining the structural integrity and details of your original sketch.
  • Review and refine: Once the import is completed, it’s essential to review the sketch to ensure all elements have been appropriately integrated. You might need to make minor adjustments or refinements, especially for intricate details or symbols that may not have transferred perfectly.

Copying Symbols in Sketch

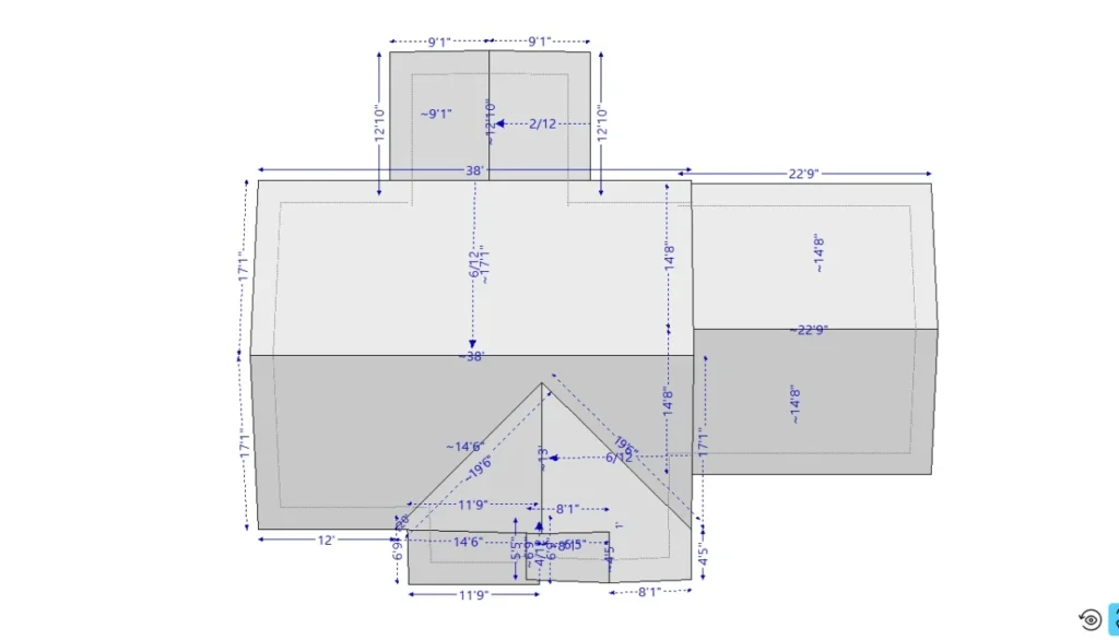
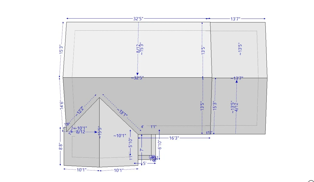
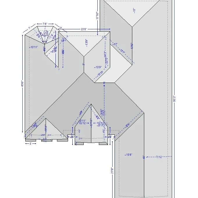
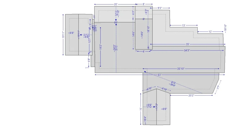
The foundation of a flawless claim lies in the sky. Accurate aerial roof measurements transform the estimation process by correct , delivering irrefutable precision. By leveraging property aerial imagery and detailed measurement reports, you can create bulletproof Xactimate Roof Sketches that ensure fast approvals and maximize profitability. Also providing matterpoint to xactimate services this guide walks you through the journey from aerial data to a professional estimate.

Crafting Interior Sketches with Symbility

Interior sketches are crucial in the insurance industry, providing detailed representations of the insides of a structure. The Symbility platform allows users to create comprehensive interior sketches that can visually convey damages, renovations, and layouts to all stakeholders involved. With tools specifically designed for interior sketches, users can easily draw walls, add doors, and place furniture, fostering a better understanding of the space. The ability to add annotations and notes further amplifies the effectiveness of these interior sketches.

Symbility Interior Sketch App

For users who prefer working on mobile devices, the Symbility Interior Sketch app offers an incredible solution. Available for both iOS and Android, this app allows users to create and modify interior sketches on the go. Whether you’re conducting an on-site assessment or simply need to make updates, the mobile app keeps your workflow fluid and efficient.

Interior Sketch Symbility App for iPhone

Apple users especially benefit from the dedicated interior sketch Symbility app available for iPhone. The app retains the full functionality of the desktop version while optimizing the user experience for mobile. This portability is crucial for professionals who are frequently in the field, allowing them to capture details and updates instantly.

Understanding Sketches of Fire Symbols

In insurance claims, it’s particularly essential to include specific symbols that represent fire damage and safety features. Properly providing to our customer the xactimate roof sketches of fire symbols can highlight crucial elements related to fire safety protocols, such as smoke detectors, sprinklers, and emergency exits. Ensuring these symbols are prominent in your sketches provides critical information to claim adjusters, paving the way for smoother processing of insurance claims.

Symbility Rotating Sketch Other Than 45 Degrees

One of the most useful features of Symbility Sketch is the ability to rotate your drawings with precision. While many users are familiar with rotating sketches in standard increments of 45 degrees, Symbility allows for more granular control. Whether you require your sketches to be oriented at a specific angle or need to achieve a more visually appealing layout, this feature ensures you have the freedom to design your sketches to fit your needs. To rotate the sketch, select the item you wish to rotate, choose the rotating tool, and make fine adjustments as desired. Whether for artistic purposes or creating a clearer presentation, being able to manipulate your sketches freely can enhance your overall productivity.

Using Material Symbols in Sketch

Lastly, incorporating material symbols into your sketches can greatly enhance the detail and clarity of your visual documentation. These symbols categorize different materials used in construction, which can be crucial for insurance claims, evaluations, and restoration projects. By employing material symbols, you provide context to the items in your sketches. For example, using specific symbols for roofing materials, siding, and flooring can make it easier for claims adjusters to assess damages and determine the best course of action.

Best Practices for Using Symbility Sketch

To make the most of your experience with Symbility Sketch and its XML functionalities, consider the following best practices:

  • Familiarize Yourself with the Interface: Spend time exploring the tools and features available within Symbility Sketch to enhance your expertise and efficiency.
  • Utilize Templates: Using pre-designed templates can save significant time and effort, particularly for common layouts and features.
  • Stay Organized: Regularly archive and maintain your sketches, categorizing them based on projects or clients to streamline your access to historical data.
  • Regularly Update Skills: Make it a point to stay informed about updates to the software and new features, ensuring that you leverage the platform’s full potential.
  • Seek Feedback: Engage colleagues and clients for feedback on your sketches and utilize their insights to improve your work.